Roofs of Berlin

What makes housing affordable in the context of Berlin?

Specifying and defining the broadly used term of affordable architecture is crucial to develop an appropriate solution for the intensifying housing crisis in the capital of Germany. We determined four requirements that have to be addressed which will serve as a framework for our architectural proposal in the Berlin Affordable Housing Challenge.

1. Systematic approach

Berlin’s housing crisis has been defined by an annual shortage of up to 80.000 flats and rise in rental fees by 10 percent. To address these issues, we proposed a systematic rooftop extension of East Berlin’s social housing blocks that allows for easy construction and low cost ownerships. The notoriously standardised design of many East Berlin housing blocks allows for replication and expansion on roofs without difficulty. Additionally, eliminating the costs for plots by stacking units on top of existing structures takes away the most significant expense for housing projects in urban areas.

2. Economic sustainability and flexibility

Our proposal incorporates self-administration and ownership through a building group system. The design features a communally owned structural framework, sheeted in polycarbonate in which individual units can be inserted. Within this framework, individual units can be incrementally expanded and transformed to adapt to needs of residents, reducing the necessity to sell and move to more expensive flats. Alternatively, additional units can be constructed over time as new residents join the building group.

The system of incremental expansion also lowers the cost to home ownership. It allows for the initial units of 47 m² to be upgraded to a maximum of 131 m², providing appropriate spaces for almost all resident demographics.

3. Quality

While the individual units are relatively small, a communal corridor and shared spaces are provided to house additional programmes and activities. These spaces are situated within the framework and can function as a shared kitchen, a gym, a garden or a cinema. Additionally, these spaces can also be used by the inhabitants of the existing building to eventually form a community between old and new residents. Loggias and balconies can also be added onto the individual units.

4. Construction costs.

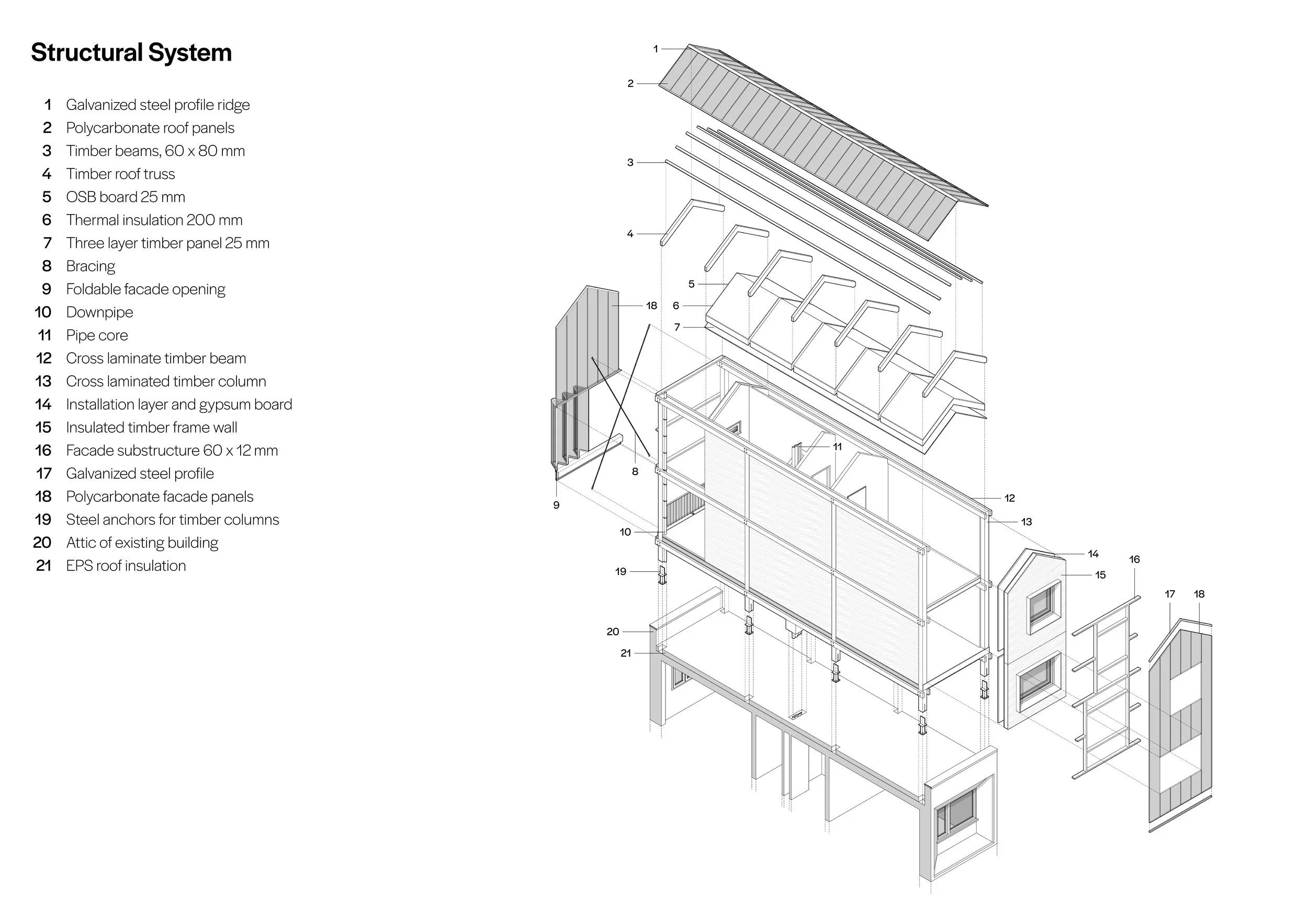
Considerations for construction include lightweight and low-cost materials that minimises the load on the existing buildings and easy transportation and assembly of components. The structural framework would consist of cross laminated timber while walls and floors of the individual units would be made out of standardised insulated timber frames that can be assembled on site. Polycarbonate panels for the outer roof and façade further reduces weight and individual panels can be easily replaced or adapted to create additional openings. The floor of the framework is elevated by a few centimetres above the roof of the existing building to avoid costly adaptation of the existing roofscape. Existing stair and elevator cores of the adopted buildings will also serve as access for the new expansions.

Site:

The rooftop of the Rathauspassagen, a P2 type former social housing complex situated in close proximity to Alexanderplatz, was selected as a potential site for the implementation of the project. Due to its central location and high property costs, the surrounding area has long been gentrified and today Alexanderplatz is mostly visited by only tourists. Transforming the roof of such a prominent and central building would not only allow residents to return to the city center but would also present the concept to a larger audience and encourage the development of affordable housing on other rooftops across Berlin.


Project name

Roofs of Berlin


Site

Alexanderplatz, Berlin, Germany


Typology

Residential


Year

Spring 2022


Status

1st Price, on going


Team

Ruonan Wang, Moritz Maier


Weiter
Weiter

Cambodia Tree House